THÔNG TIN CHI TIẾT CÔNG TRÌNH.
PHONG CÁCH: Nhà cấp 4 hiện đại 150m2.
KÍCH THƯỚC: 15m x 16m.
CÔNG NĂNG:
TẦNG 1: Phòng khách + Bếp – Phòng ăn + Phòng ngủ master – wc + 2 phòng ngủ + 2 Vệ sinh chung.
MÔ TẢ CHI TIẾT CÔNG TRÌNH
THIẾT KẾ MẶT TIỀN.10
Mẫu nhà cấp 4 đẹp hiện đại 150m2 thiết kế độc đáo phong cách hiện đại gần gũi với thiên nhiên thu hút mọi ánh nhìn. Màu trắng đơn giản nhưng toát lên được thần thái sang trọng đan xen những màu sắc nâu của gỗ tự nhiên, kết hợp hệ cửa kính trong suốt. Đã mang đến sự thông thoáng, rộng rãi bên trong vừa giúp cho ngôi nhà trở nên sang trọng, ấn tượng hơn.

Phần mái thái màu xanh nổi bật thanh thoát cộng thêm thiết kế thông gió ở phía trên ấn tượng, những đường chỉ tinh tế nhằm tăng thêm tính thẩm mỹ của toàn bộ nhà cấp 4. Phần kiến trúc được thiết kế đơn giản, vững chắc phù hợp với yêu cầu của chủ nhà.

Thiết kế nhà cấp 4 hình chữ L nhằm tạo ra một góc sân rộng rãi tận dụng để trồng cây xanh, trong khi đó thiên nhiên bên ngoài ngập tràn sắc xanh, hương sắc của những loài hoa. Mẫu nhà cấp 4 đẹp hiện đại 150m2 tuy nhỏ gọn nhưng mang lại một không gian sống thư giãn, thoải mái cho tất cả các thành viên trong gia đình.
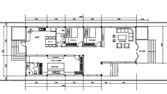
THIẾT KẾ CÔNG NĂNG TẦNG 1.
Xung quanh nhà là khoảng sân bao quanh có tường rào chắn. Đi từ sảnh chính vào là phòng khách được bố trí ở vị trí trung tâm của ngôi nhà tạo điều kiện cho việc sinh hoạt chung được tốt nhất. Trong khi đó bếp và phòng ăn được thiết kế phần bên hông của ngôi nhà mang đến sự riêng tư, rộng rãi, tại đây có cửa đi ra sảnh phụ.

Phòng ngủ master chính đầy đủ nội thất với vệ sinh khép kín bên trong, 2 phòng ngủ khác diện tích nhỏ song vẫn đảm bảo thông thoáng tiện nghi. Nhà vệ sinh ở bên ngoài để có thể dùng chung cho các thành viên trong gia đình.
