Thiết kế nhà vườn phong cách tân cổ điển đẹp

THÔNG TIN CHI TIẾT CÔNG TRÌNH.

PHONG CÁCH:   Mẫu thiết kế nhà vườn phong cách tân cổ điển đẹp

CÔNG NĂNG:

  • TẦNG 1:  Phòng khách kết hợp phòng thờ, phòng bếp, 2 phòng ngủ , nhà vệ sinh chung , phòng ngủ master.

MÔ TẢ CHI TIẾT MẶT TIỀN CÔNG TRÌNH.

Mẫu thiết kế nhà vườn đẹp mang đậm phong cách tân cổ điển. Với tôn màu chủ đạo là sơn trắng. Mái nhật được lợp ngói màu xanh ghi rất nội bật đối lập với màu sớn trắng. Ngôi nhà được sử dụng hệ cửa gỗ kính. Kiến trúc sư thiết kế ra ngôi nhà đã không sử dụng nhiều phào chỉ làm ngôi nhà trở nên nặng nề. Thay vào đó bằng những điểm nhấn rất tinh tế như cửa sổ vòm, sảnh đón hình vòm là những điểm nhấn nhỏ nhưng làm nên phong cách của ngôi nhà. Với sự tài tình trong phong cách thiết kế, ngôi nhà nổi bật những không rườm ra những tiểu tiết trong thiết kế.

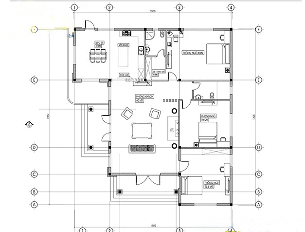
MẶT BẰNG CÔNG NĂNG:

Mặt bằng công năng được bố trí như sau, ngôi nhà có 2 sảnh, sảnh chính và sảnh phụ đều mở 2 cửa lớn đi vào phòng khách. Phòng khách của ngôi nhà được kết hợp với phòng thờ vì vậy diện tích của phòng khách khá lớn. Khu vực thờ đặt ở vị trí trang nghiêm, từ sảnh phụ nhìn thẳng vào tạo không gian trang nghiêm những vẫn đầm ấm.

Ngôi nhà được thiết kế theo mặt bằng hình chữ L, phòng bếp được thiết kế rất khéo léo ở khu vực khá riêng , không gian riêng biệt và rộng rãi . Bàn bếp và khu đảo bếp rộng dãi. Khu vực bàn ăn rộng, được đặt bàn ăn 8 người ngồi thoải mái. Phòng bếp có nhiều cửa sổ mà cửa phụ đi ra phía sau nhà. Khi ngồi ăn uống hay nấu ăn có thể nhìn ra bên ngoài ngắm cảnh.

3 phòng ngủ được thiết kế 1 phía. 2 phòng ngủ thường phía trước. Kế tiếp là 1 nhà vệ sinh chung của cả gia đình. Nhà vệ sinh được thiết kế vô cùng khéo léo vừa tiện cho việc sinh hoạt nhưng vừa kín đáo. Phòng ngủ trong cùng là phòng ngủ master của bố mẹ với diện tích lớn nhất, có đầy đủ tiện nghi.

Tất cả các phòng ngủ đều được mở cửa sổ, từ trong phòng ngủ có thể ngắm cảnh bên ngoài, ngoài ra căn phòng luôn tràn ngập ánh sáng tự nhiên vào phòng. Điều này rất tốt cho sức khỏe của các thành viên trong gia đình.

Gọi điện thoại
0916.707.892