THÔNG TIN CHI TIẾT CÔNG TRÌNH.
PHONG CÁCH: Mẫu thiết kế nhà vườn đẹp độc đáo
CÔNG NĂNG:
- TẦNG 1: Phòng khách, phòng bếp, 2 phòng ngủ , nhà vệ sinh chung , phòng ngủ khép kín, sân chơi.
MÔ TẢ CHI TIẾT MẶT TIỀN CÔNG TRÌNH.

Mẫu thiết kế nhà vườn đẹp độc đáo hôm nay là ngôi nhà được chúng tôi nhận thiết kế cho gia đình. Sau khi bàn bạc và trao đổi ý tưởng , kiến trúc sư phụ trách thiết kế đã lên phương án 3D và nhận được sự hài lòng của gia chủ.
Với thiết kế mang đậm phong cách hiện đại, lối thiết kế thoáng đạt hòa vào với thiên nhiên. Ngôi nhà được thiết kế với mặt tiền không gian mở. Điểm nhấn của ngôi nhà chính là những mảng tường ốp gạch granit giả đá. Nhưng khối trang trí tinh tế kết hợp vô cùng hài hòa với nhau tạo nên một ngôi nhà đẹp và khá lạ mắt.
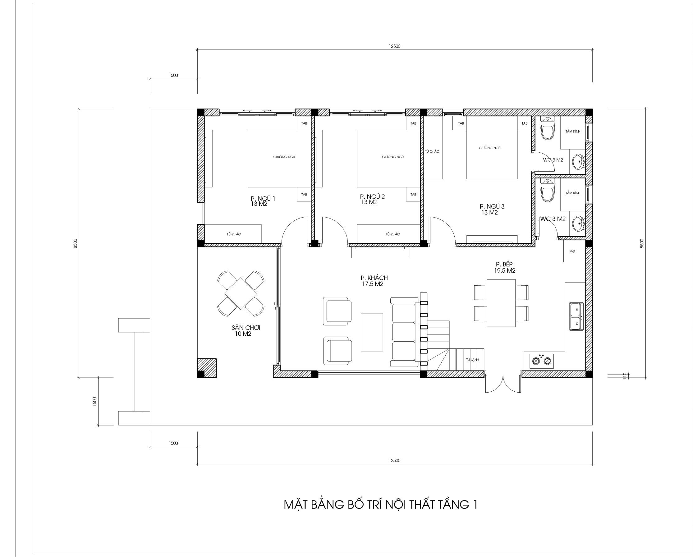
MẶT BẰNG TẦNG 1:

Ngôi nhà được thiết kế mặt bằng chia phòng rất hợp lý. Từ ngoài đi vào là khu vực phòng khách rộng 17m2. Có 1 cầu thang nhỏ dẫn lên tầng xép phía trên. Phòng khách được ngăn cách với phòng bếp bởi vách trang trí. Bên cạnh phòng khách là phòng bếp rộng gần 20m2 với khu vực nấu ăn rộng rãi .
Mặt bằng chia phòng được chia thành khu phòng khách bếp 1 bên , khu vực phòng ngủ nghỉ ngơi 1 bên, nhìn rất khoa học và vuông vắn. KTS đã thiết kế 3 phòng ngủ, trong đó có 1 phòng ngủ bố mẹ là phòng ngủ khép kín có vệ sinh trong phòng. Phòng ngủ khép kín là phòng phía trong cùng. 2 phòng ngủ con cạnh nhau nằm phía ngoài. Có 1 nhà vệ sinh chung được đặt trong cùng đối diện khu vực bếp.
Tất cả các phòng đều có cửa sổ, vách kính trang trí , mục đích lấy ánh sáng tự nhiên vào trong phòng để phòng ngủ lúc nào cũng sáng sủa và thơm tho. Phòng khách và phòng bếp với thiết kế thoáng đạt vô cùng hợp lý. Bên ngoài là khu vực sân chơi nhỏ được kê 1 bộ bàn ghế để mọi người ngồi chơi, uống trà.
